Skip to main content
Coimbra heraldic loading icon
Saltar para o conteúdo principal

20 Agosto 2020

Cinco novas passagens para peões vão dar maior segurança no atravessamento da Linha do Norte em Coimbra

A Câmara Municipal (CM) de Coimbra aprovou, na reunião do executivo municipal de segunda-feira, os projetos de execução elaborados pela Infraestruturas de Portugal (IP) para a construção de cinco novos atravessamentos para peões na Linha ferroviária do Norte em Coimbra. As passagens desniveladas vão ser construídas no apeadeiro da Espadaneira (passagem inferior), Loreto Sul, Ameal, Casais e na Estação de Taveiro (passagens superiores). O objetivo passa por oferecer aos utilizadores maior segurança e conforto no atravessamento da linha férrea.

Coimbra vai receber cinco novas passagens para peões para dar maior segurança no atravessamento da Linha do Norte em Coimbra. Para isso a IP elaborou os projetos de execução, com vista ao encerramento das passagens de nível existentes atualmente e a construção destas novas passagens desniveladas para peões.

 

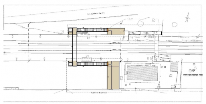
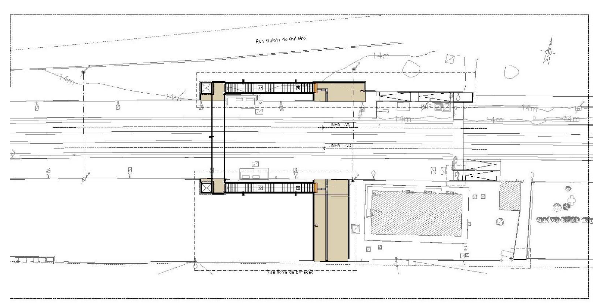
A Estação de Taveiro vai ser um dos locais que vai ter uma passagem superior para peões. Com a construção desta estrutura metálica, fica garantida uma solução que oferece segurança, rapidez, comodidade e atratividade aos utilizadores, evitando conflitos entre a circulação de peões e os comboios na linha férrea, e permitindo o encerramento do atravessamento atualmente existente na estação. A passagem superior para peões assegura, ainda, o acesso a pessoas com deficiência visual ou mobilidade reduzida. A passagem ficará situada a poente do edifício técnico de sinalização – que permite a mudança de plataforma e o atravessamento urbano entre a Rua Nova da Estação e a Rua Quinta do Outeiro – e terá acesso por escadas e por elevadores.

 

É também proposta uma ligação pedonal da passagem superior para peões à Rua Nova da Estação, permitindo um novo acesso mais direto à plataforma, bem como a demolição do atual atravessamento, da vedação da linha nesse local e a pavimentação do caminho pedonal que liga a plataforma à Rua Quinta do Outeiro, permitindo um atravessamento urbano mais cómodo, rápido e seguro em toda a extensão desta estação ferroviária.

 

Também o Bairro do Loreto vai passar a ter uma passagem superior para peões sobre a Linha do Norte, com acesso por escadas e elevadores, que possibilitará o atravessamento entre a Estrada de Loreto e a Rua Cel. Júlio Veiga Simão e permitirá avançar com o encerramento da passagem de nível existente ao tráfego pedonal e rodoviário, estando contemplada uma zona de inversão de marcha na Estrada do Loreto. Essa nova estrutura irá garantir um atravessamento mais cómodo e seguro aos utilizadores, apresentando soluções para pessoas com deficiência visual e mobilidade reduzida. Está prevista a inclusão de calhas para bicicletas ao longo das escadas de acesso à passagem superior, o que constitui uma novidade em soluções deste tipo existentes ou previstas no município, contribuindo para a promoção da utilização deste modo suave de transporte.

 

A IP apresentou, ainda, soluções para a construção das passagens superiores de peões dos apeadeiros do Ameal e de Casais, com vista ao encerramento dos atravessamentos das gares que existem atualmente nos dois apeadeiros. Nos dois casos, a construção das passagens, por se localizarem sobre o atravessamento existente, implicam a elaboração de soluções provisórias de acesso ao apeadeiro e de atravessamento entre plataformas de passageiros durante a fase de construção. As soluções, que visam garantir uma maior comodidade e segurança aos utilizadores, terão acesso por escadas e elevadores, considerando as necessidades das pessoas com mobilidade condicionada.

 

No caso do apeadeiro do Ameal, a localização da passagem superior será a poente do apeadeiro, fazendo-se a ligação pedonal à estrutura da passagem desnivelada sobre a rodovia existente, através de um caminho pedonal, à semelhança do que já acontece atualmente. A solução encontrada mantém o acesso às plataformas de passageiros através de rampas, nas quais se incorporam as rampas atualmente existentes. A partir deste acesso por rampas, é ainda efetuado o acesso aos elevadores da passagem superior para peões. As escadas para essa nova passagem desenvolvem-se a partir das plataformas de passageiros.

 

Quanto ao apeadeiro de Casais, a passagem superior para peões irá permitir a mudança de plataforma e também o atravessamento urbano entre a Rua Central e a Rua 20 de Maio. Como este é um apeadeiro fortemente condicionado pela envolvente urbana, a passagem será implementada do lado poente das plataformas de passageiros, sobre o atravessamento que existe atualmente. Será, pois, necessário corrigir o perfil das vias rodoviárias envolventes, de forma a criar passeios que permitam que o utente circule em segurança na entrada e saída do apeadeiro, pelo que se terá de proceder à expropriação de uma pequena parcela numa propriedade da Rua 20 de Maio e de outra pequena parcela numa propriedade da Rua Central. A solução encontrada redefine o acesso às plataformas de passageiros por rampa, mantendo a sua localização atual, e permite ainda o fácil acesso às escadas e ascensores da passagem desnivelada, possibilitando o atravessamento da via férrea.

 

Também no apeadeiro de Espadaneira, o objetivo é encerrar o atual atravessamento da gare. Contudo, neste caso, a solução passa pela construção de uma passagem inferior para peões. A passagem desnivelada vai localizar-se a norte/nascente das plataformas de passageiros, situação onde as cotas são mais favoráveis, embora sejam necessárias algumas alterações. Esta solução permite que o atravessamento urbano seja feito de nível e que o acesso às plataformas possa ser realizado através de escadas, sendo que para as pessoas com mobilidade condicionada é possível o acesso às plataformas através dos passeios limítrofes aos arruamentos existentes e que serão, agora, redefinidos. A inserção das escadas, tardoz relativamente às plataformas de passageiros, recentemente alteadas, permite que não haja interferência nas plataformas existentes e já alteadas no âmbito de uma obra já realizada.

 

Esta solução implica o reperfilamento da Rua do Apeadeiro, a norte, o reperfilamento e o rebaixamento da Rua Dr. Manuel Campos Pinheiro, a sul. É ainda proposta a definição de passeios nessas vias e a elaboração de faixas verdes de transição entre os muros tardoz das plataformas de passageiros e esses passeios agora propostos, de modo a garantir a segurança estrutural dos muros existentes. No passeio da Rua do Apeadeiro, que vai desde a entrada/saída da passagem desnivelada até à atual entrada no apeadeiro, é necessária a construção de rampas de forma a cumprir a legislação aplicável relativa às acessibilidades. A proposta prevê ainda a demolição do atual atravessamento e a vedação da linha nesse local.

Câmara Municipal de Coimbra logo

Câmara Municipal de Coimbra

Praça 8 de Maio - 3000-300, Coimbra
geral@cm-coimbra.pt
239 857 500 (chamada para a rede fixa nacional)