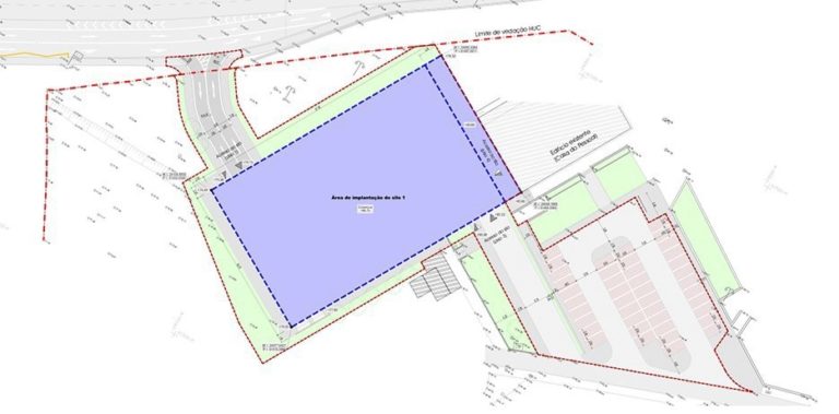
O silo será construído na zona do atual campo de jogos, junto à Casa do Pessoal, e prevê a criação de cerca de 360 lugares de estacionamento distribuídos por quatro pisos e cobertura, numa área total de 10.400 m² de pavimento.

Apesar de considerar o projeto urbanisticamente enquadrado, os serviços municipais manifestaram-se contra a proposta de acesso direto ao parque pela Rua Afonso Romão, por esta ser uma via coletora, o que é incompatível com o regulamento do Plano Diretor Municipal de Coimbra. Assim, o parecer da autarquia será condicionado à eliminação do acesso direto a partir daquela via, devendo a entrada e saída de viaturas ser feita exclusivamente pelo interior do complexo hospitalar.
O condicionamento vai poder ser revisto futuramente, quando for construída a nova rotunda de acesso ao Polo III da Universidade e à futura Maternidade, adianta no seu despacho a vereadora do Urbanismo da CM de Coimbra, Ana Bastos, para que sejam salvaguardadas “as devidas condições de fluidez e segurança na Circular Interna (via coletora)”. “Nessa altura o acesso ao silo deverá ser necessariamente transferido para o novo arruamento de acesso ao Polo III/Maternidade”, defende ainda a autarca.
O projeto prevê a construção de um parque de estacionamento automóvel em altura (silo de estacionamento), com área de implantação aproximada de 2.260 m², superfície de pavimento aproximada de 10.400 m², e capacidade máxima aproximada de 360 lugares de estacionamento para veículos ligeiros. O edifício é constituído por quatro pisos, com aproveitamento da cobertura para funcionar também como área de estacionamento de veículos.